︎
Staehelin Meyer Architektur AG
_______
Aktuelles
Projekte
Büro
Kontakt
_______
066
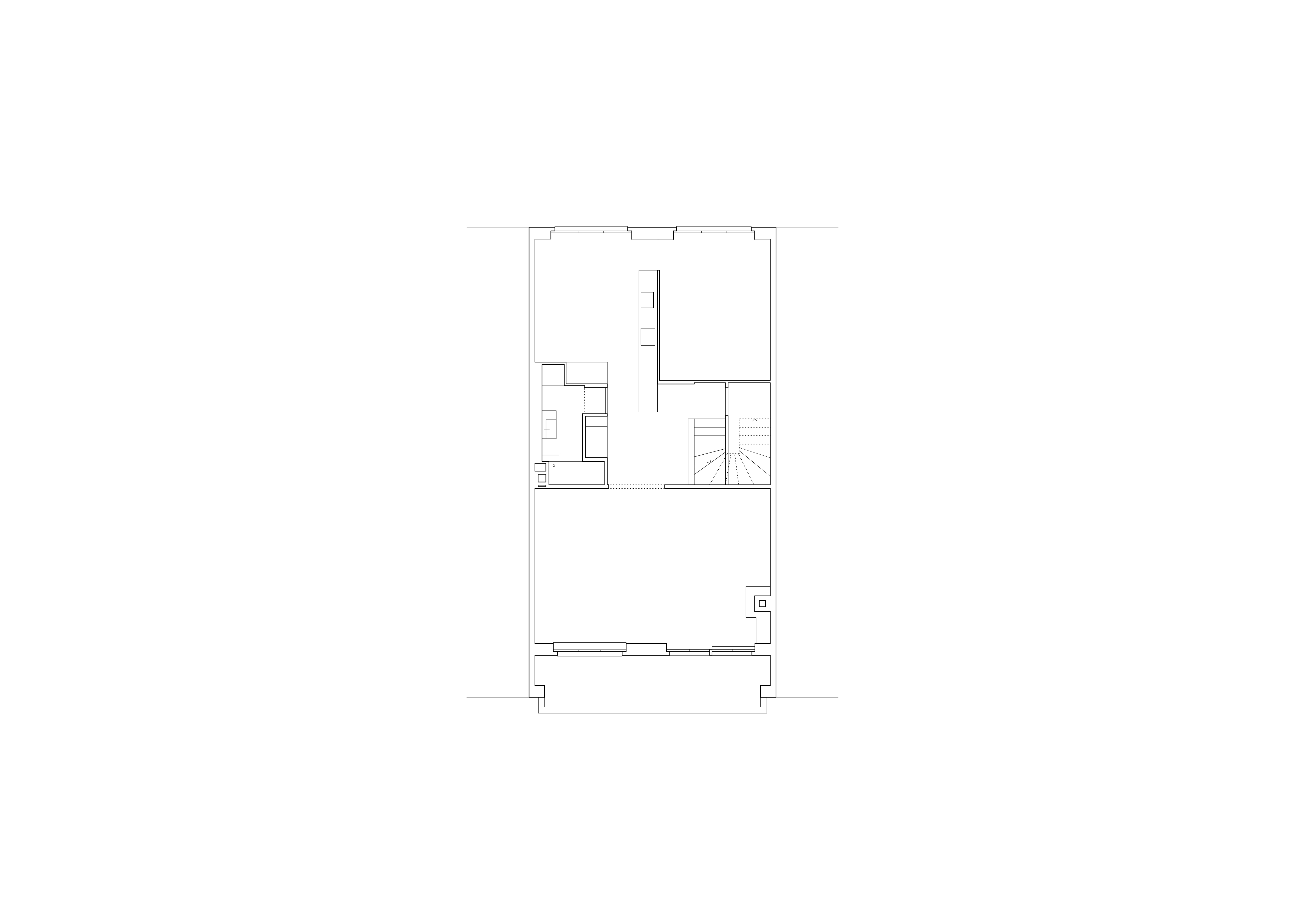
Umbau MFH
Im Sesselacker, Basel
2019
_______
Bilder
Pläne
Info
Staehelin Meyer Architektur AG
_______
Aktuelles
Projekte
Büro
Kontakt
_______
066
Umbau MFH
Im Sesselacker, Basel
2019
_______
Bilder
Pläne
Info
Staehelin Meyer Architekten ETH SIA
_______
Aktuelles
Projekte
Büro
Kontakt
_______
︎
︎
Copyright © 2025 Staehelin Meyer Architektur . All rights reserved.