︎
Staehelin Meyer Architektur AG
_______
Aktuelles
Projekte
Büro
Kontakt
_______
017
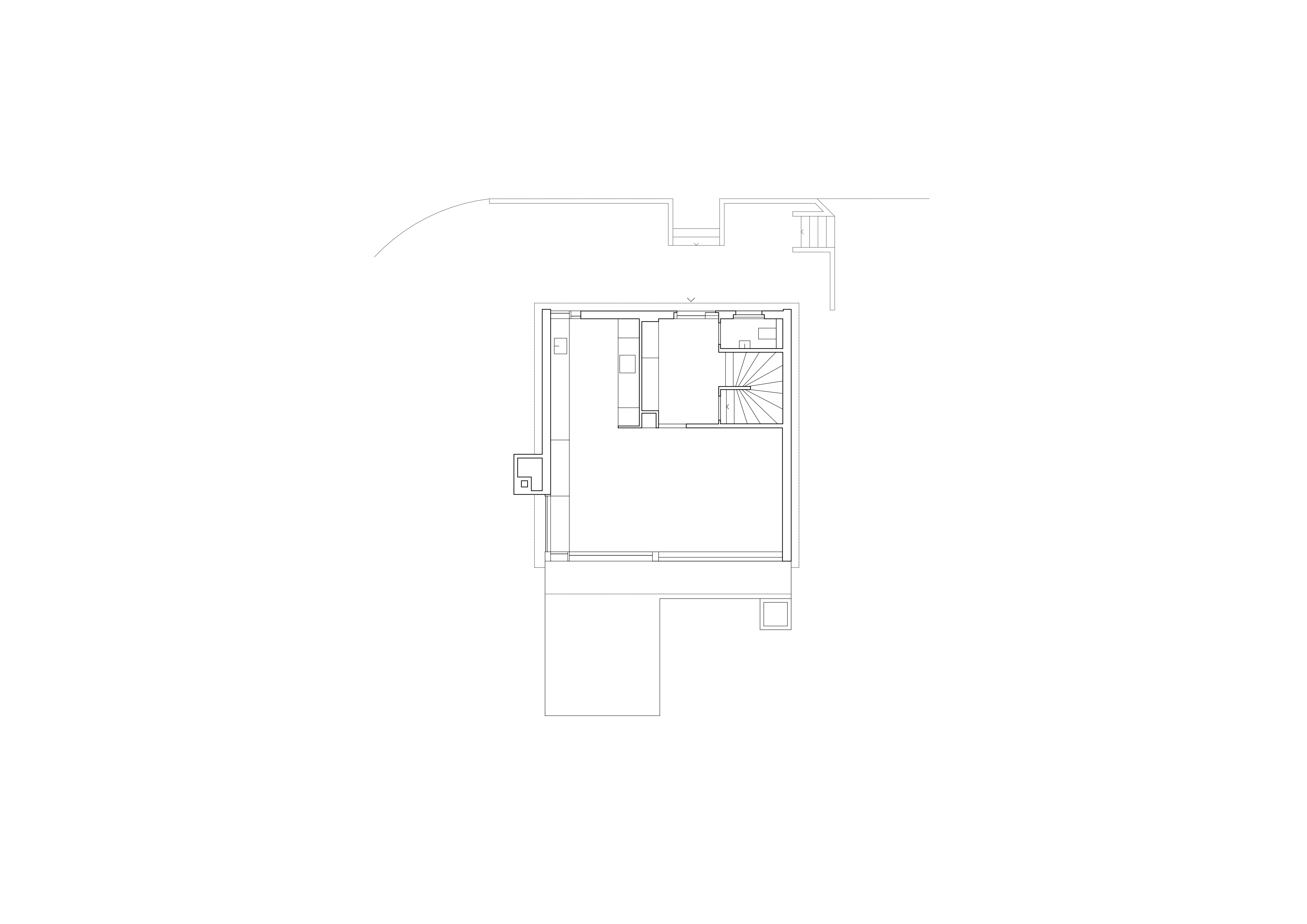
Umbau EFH
Fasanenstrasse, Basel
2013-14
_______
Bilder
Pläne
Info
Staehelin Meyer Architektur AG
_______
Aktuelles
Projekte
Büro
Kontakt
_______
017
Umbau EFH
Fasanenstrasse, Basel
2013-14
_______
Bilder
Pläne
Info
Staehelin Meyer Architekten ETH SIA
_______
Aktuelles
Projekte
Büro
Kontakt
_______
︎
︎
Copyright © 2025 Staehelin Meyer Architektur . All rights reserved.