︎
Staehelin Meyer Architektur AG
_______
Aktuelles
Projekte
Büro
Kontakt
_______
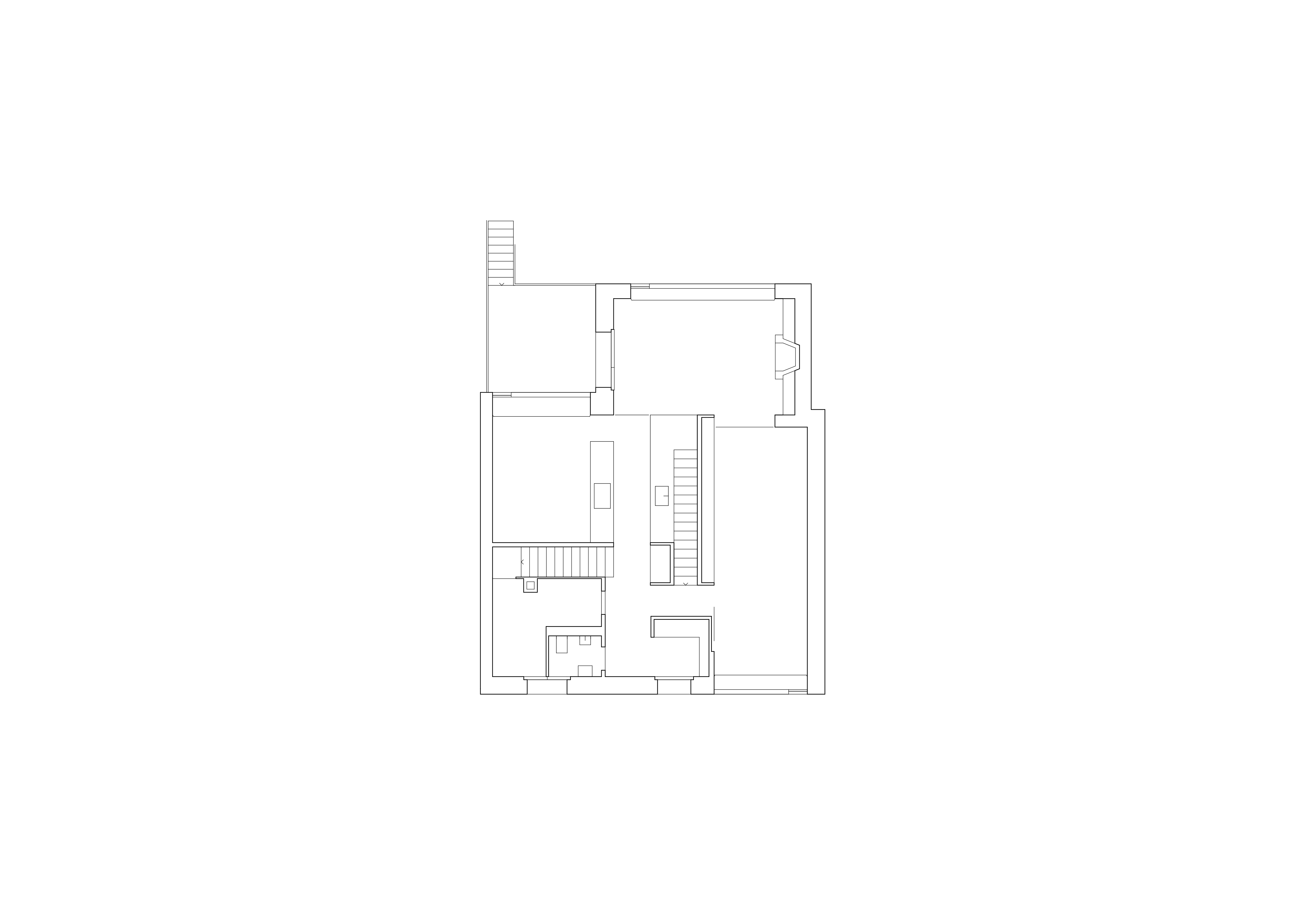
002
Umbau EFH
Biascastrasse, Basel
2010-11
_______
Bilder
Pläne
Info
Staehelin Meyer Architektur AG
_______
Aktuelles
Projekte
Büro
Kontakt
_______
002
Umbau EFH
Biascastrasse, Basel
2010-11
_______
Bilder
Pläne
Info
Staehelin Meyer Architekten ETH SIA
_______
Aktuelles
Projekte
Büro
Kontakt
_______
︎
Copyright © 2025 Staehelin Meyer Architektur . All rights reserved.